Логотип компании в шапке сайта
Комплектующие для окон
Контакты
+7(931)009-48-58
Социальная сеть whatsapp

Профиля дополнительные

Поделиться
Отделочные материалыИнструментыПВХ ПОДОКОННИК "ПДК"Отливы, Козырьки, Металл в рулонах, ШтрипсСэндвич и ПВХ панелиСэндвич-панели для откосов (в распил)Стартовые и финишные профили F и ПНащельники, Наличники, Фальш-переплеты, Углы гибкиеМонтажная пена и очистители пен и герметиковCosmofen и аналогиКрепеж, Анкерные пластины, ДюбеляПаро-гидроизоляцияСтиз и АналогиПСУЛМоскитные комплектующиеУплотнителиПластмассовые изделияРучки для окон и балконные гарнитурыКрепление импостаТермометры и ТермогигрометрыАлюминиевые системыФурнитура двернаяПрофиль армирующийДоборные профили и алюминиевые пороги для профилей КВЕ и их аналоговДоборные профили и алюминиевые пороги для профилей REHAU и их аналоговПрофиль BrusboxПрофиль Орас Аналог RehauПрофиль Орас Аналог KBEПрофиля и аксессуары для монтажа гипсокартона и отделкиСайдинг и Фасадные панелиВОДОСТОЧНАЯ СИСТЕМА FINEBERМоскитные сетки под заказ самовывоз скады Тула, ЯрославльПленка полиэтиленоваяСмазкиРекламная поддержка
https://snabcentr.com/catalog/virtual/ruchki-rehau
kronos
https://snabcentr.com/catalog/product/50028?utm_source=snabcentr&utm_medium=banner&utm_campaign=new_nagel

RAL 9016

Артикул: 00-00003130
10.017.215 Штапик 21,5мм RAL 9016  L=6500 (1)
10.017.215 Штапик 21,5мм RAL 9016 L=6500
Артикул производителя: 10.017.215 RAL 9016
Норма упаковки: 1
176.53 ₽ / м.
Проверить наличие
Артикул: 00-00005970
Штапик 29,5мм RAL 9016  L=6500 (1)
Штапик 29,5мм RAL 9016 L=6500
Артикул производителя: 10.017.295
Норма упаковки: 1
198.19 ₽ / м.
Проверить наличие
https://snabcentr.com/catalog/virtual/ruchki-rehau
kronos
nagel
Регистрация
Артикул: 00-00008367
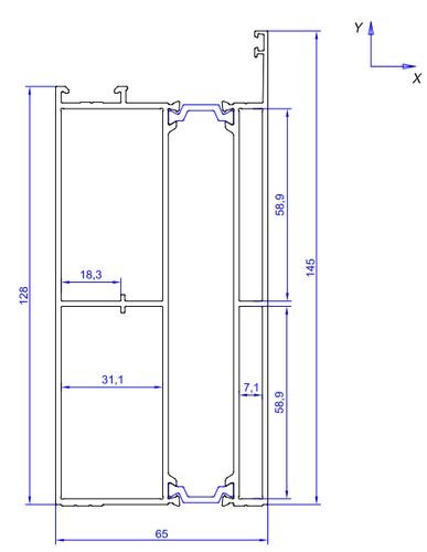
Дверной цокольный профиль 128мм L=6500 RAL9016 (1)
Дверной цокольный профиль 128мм L=6500 RAL9016
Артикул производителя: 65.550.00
Норма упаковки: 1
2,604.81 ₽ / м.
Проверить наличие

RAL 9016

Артикул: 00-00003974
45.500.01 Профиль щеткодержателя RAL 9016 L=6500 (1)
45.500.01 Профиль щеткодержателя RAL 9016 L=6500
Артикул производителя: 45.500.01 RAL 9016
Норма упаковки: 1
112.38 ₽ / м.
Проверить наличие
Артикул: 00-00008349
Адаптер формирования глухого заполнения RAL 9016 L=6500 (1)
Адаптер формирования глухого заполнения RAL 9016 L=6500
Артикул производителя: 45.000.01
Норма упаковки: 1
145.43 ₽ / м.
Проверить наличие

Неокрас

Артикул: 00-00003113
10.017.215 Штапик 21,5мм неокрас L=6500 (1)
10.017.215 Штапик 21,5мм неокрас L=6500
Артикул производителя: 10.017.215 неокрас
Норма упаковки: 1
149.69 ₽ / м.
Проверить наличие
Артикул: 00-00005969
Штапик 29,5мм неокрас  L=6500 (1)
Штапик 29,5мм неокрас L=6500
Артикул производителя: 10.017.295
Норма упаковки: 1
162 ₽ / м.
Проверить наличие
Артикул: 00-00004475
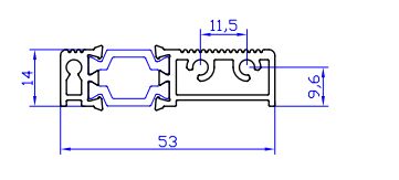
Профиль порога 14мм неокрас L6500 (1)
Профиль порога 14мм неокрас L6500
Артикул производителя: 65.590.00
Норма упаковки: 1
809.36 ₽ / м.
Проверить наличие
Артикул: 00-00008363
Дверной цокольный профиль 128мм L=6500 неокрас (1)
Дверной цокольный профиль 128мм L=6500 неокрас
Артикул производителя: 65.550.00
Норма упаковки: 1
2,413.04 ₽ / м.
Проверить наличие

Неокрас

Артикул: 00-00004498
Профиль щеткодержателя неокрас L=6500 (1)
Профиль щеткодержателя неокрас L=6500
Артикул производителя: 45.500.01
Норма упаковки: 1
96.37 ₽ / м.
Проверить наличие
Артикул: 00-00008350
Адаптер формирования глухого заполнения неокрас L=6500 (1)
Адаптер формирования глухого заполнения неокрас L=6500
Артикул производителя: 45.000.01
Норма упаковки: 1
119.57 ₽ / м.
Проверить наличие

Неокрас

Артикул: 00-00008704
Штапик 15,5мм неокрас L=6000 (1)
Штапик 15,5мм неокрас L=6000
Артикул производителя: 10.017.155
Норма упаковки: 1
110.91 ₽ / м.
Раскупили

Профиля

Артикул: 00-00005455
Тяга алюминиевая Provedal All5/75 (Press, 6000) (1)
Тяга алюминиевая Provedal All5/75 (Press, 6000)
Артикул производителя: 555.02.08/508
Норма упаковки: 1/1200
87.97 ₽ / м.
Проверить наличие