





Основной склад: | В наличии |
| Склад Лежневская (Иваново): | В наличии |
| Склад Тула: | В наличии |
Подоконник «ПДК» СТАНДАРТ — подоконник из ПВХ с белым декоративным покрытием, предназначенный для внутренней установки. Отличается устойчивостью к влаге, ультрафиолету и бытовым моющим средствам, легко очищается и подходит для стандартных оконных систем.
Технические характеристики
• Тип: подоконник ПВХ
• Бренд/серия: ПДК СТАНДАРТ
• Материал: поливинилхлорид (ПВХ)
• Ширина: 250 мм
• Длина: хлыст (длинномерная заготовка)
• Цвет: белый
• Поверхность: декоративная, износостойкая
• Устойчивость: к влаге, УФ излучению, бытовой химии
• Температура эксплуатации: от –40 °C до +60 °C
Совместимые материалы
Подходит для установки с:
• пластиковыми и алюминиевыми окнами
• откосами из ПВХ, гипсокартона и штукатурки
• монтажной пеной и герметиками
• декоративными торцевыми заглушками
Способ применения
1. Замерить и отрезать подоконник по размеру оконного проёма.
2. Установить на монтажную пену или клеевой состав.
3. Выровнять по уровню и зафиксировать до полного схватывания.
4. Установить торцевые заглушки и загерметизировать стыки.
Область применения
• отделка оконных проёмов
• жилые и коммерческие помещения
• ремонтные и строительные работы
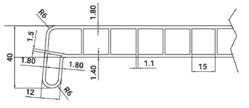
Вес: 8 кг/м2
Ширина: от 100 до 800
Длина с учетом издержек для распила: 6015 мм
Шаг размеров: 50 мм
Толщина верхней и нижней поверхности: 1,8 мм и 1,4 мм
Толщина ребер жесткости: 1,1 мм
Характеристики пленки: шагреневое покрытие, толщина 200 мкр
Защитная пленка: влагостойкая пленка на каучуком клее, при снятии оставляет поверхности чистой.
Прочность: выдерживает давление до 200 кг/м2, пригоден для использования на порог
Упаковка: упакован в толстый цветной п/э рукав. Цвет рукава зависит от цвета поверхности изделия.
При продольном распиле профиль подоконника заканчивается ребром жесткости, не оставляет поверхность без упора.
Подоконник «ПДК» СТАНДАРТ — подоконник из ПВХ с белым декоративным покрытием, предназначенный для внутренней установки. Отличается устойчивостью к влаге, ультрафиолету и бытовым моющим средствам, легко очищается и подходит для стандартных оконных систем.
Технические характеристики
• Тип: подоконник ПВХ
• Бренд/серия: ПДК СТАНДАРТ
• Материал: поливинилхлорид (ПВХ)
• Ширина: 250 мм
• Длина: хлыст (длинномерная заготовка)
• Цвет: белый
• Поверхность: декоративная, износостойкая
• Устойчивость: к влаге, УФ излучению, бытовой химии
• Температура эксплуатации: от –40 °C до +60 °C
Совместимые материалы
Подходит для установки с:
• пластиковыми и алюминиевыми окнами
• откосами из ПВХ, гипсокартона и штукатурки
• монтажной пеной и герметиками
• декоративными торцевыми заглушками
Способ применения
1. Замерить и отрезать подоконник по размеру оконного проёма.
2. Установить на монтажную пену или клеевой состав.
3. Выровнять по уровню и зафиксировать до полного схватывания.
4. Установить торцевые заглушки и загерметизировать стыки.
Область применения
• отделка оконных проёмов
• жилые и коммерческие помещения
• ремонтные и строительные работы