





Основной склад: | В наличии |
| Склад Лежневская (Иваново): | В наличии |
| Склад Тула: | В наличии |
Подоконник «ПДК» СТАНДАРТ шириной 800 мм изготовлен из жёсткого ПВХ с многокамерной структурой и декоративным белым покрытием. Оснащён одним капиносом (капельником) для отвода влаги и аккуратного внешнего вида. Отличается высокой прочностью и устойчивостью к влаге и бытовым нагрузкам.
Технические характеристики
• Тип: подоконник ПВХ
• Серия: СТАНДАРТ
• Материал: поливинилхлорид (ПВХ)
• Ширина: 800 мм
• Длина: хлыст (длинномерная заготовка)
• Цвет: белый
• Капинос: 1 капельник (1 кап)
• Поверхность: ламинированная, гладкая
• Конструкция: многокамерный профиль
• Устойчивость: к влаге, УФ излучению, бытовой химии и перепадам температур
• Назначение: внутреннее применение
Совместимые материалы
Подходит для установки с:
• ПВХ и алюминиевыми оконными системами
• кирпичными и бетонными оконными проёмами
• откосами из ПВХ, гипсокартона и штукатурки
• монтажной пеной и герметиками
Способ применения
1. Подготовить и очистить основание оконного проёма.
2. Подрезать подоконник по размеру окна.
3. Установить на монтажную пену или клеевой состав.
4. Выровнять по уровню и зафиксировать до полного схватывания.
Область применения
• жилые квартиры и частные дома
• офисы и коммерческие помещения
• балконы и лоджии
• ремонт и строительство оконных систем
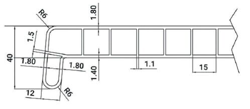
Вес: 8 кг/м2
Ширина: от 100 до 800
Длина с учетом издержек для распила: 6015 мм
Шаг размеров: 50 мм
Толщина верхней и нижней поверхности: 1,8 мм и 1,4 мм
Толщина ребер жесткости: 1,1 мм
Характеристики пленки: шагреневое покрытие, толщина 200 мкр
Защитная пленка: влагостойкая пленка на каучуком клее, при снятии оставляет поверхности чистой.
Прочность: выдерживает давление до 200 кг/м2, пригоден для использования на порог
Упаковка: упакован в толстый цветной п/э рукав. Цвет рукава зависит от цвета поверхности изделия.
При продольном распиле профиль подоконника заканчивается ребром жесткости, не оставляет поверхность без упора.
Подоконник «ПДК» СТАНДАРТ шириной 800 мм изготовлен из жёсткого ПВХ с многокамерной структурой и декоративным белым покрытием. Оснащён одним капиносом (капельником) для отвода влаги и аккуратного внешнего вида. Отличается высокой прочностью и устойчивостью к влаге и бытовым нагрузкам.
Технические характеристики
• Тип: подоконник ПВХ
• Серия: СТАНДАРТ
• Материал: поливинилхлорид (ПВХ)
• Ширина: 800 мм
• Длина: хлыст (длинномерная заготовка)
• Цвет: белый
• Капинос: 1 капельник (1 кап)
• Поверхность: ламинированная, гладкая
• Конструкция: многокамерный профиль
• Устойчивость: к влаге, УФ излучению, бытовой химии и перепадам температур
• Назначение: внутреннее применение
Совместимые материалы
Подходит для установки с:
• ПВХ и алюминиевыми оконными системами
• кирпичными и бетонными оконными проёмами
• откосами из ПВХ, гипсокартона и штукатурки
• монтажной пеной и герметиками
Способ применения
1. Подготовить и очистить основание оконного проёма.
2. Подрезать подоконник по размеру окна.
3. Установить на монтажную пену или клеевой состав.
4. Выровнять по уровню и зафиксировать до полного схватывания.
Область применения
• жилые квартиры и частные дома
• офисы и коммерческие помещения
• балконы и лоджии
• ремонт и строительство оконных систем