





Основной склад: | В наличии |
| Склад Лежневская (Иваново): | В наличии |
| Склад Тула: | В наличии |
Подоконник белый из серии STANDART.
Молочный цвет с шагренью был подобран под оттенки оконного профиля, что позволяет оконному пространству выглядеть монолитно.
Это сбалансированный вариант для первичной комплектации строительных объектов продуктом, повышенных прочностных характеристик.
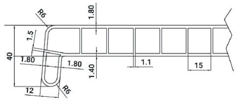
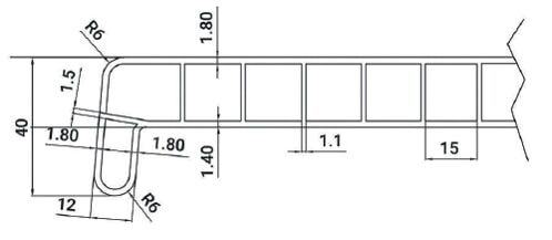
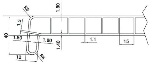
Вес: 8 кг/м2
Ширина: от 100 до 800
Длина с учетом издержек для распила: 6015 мм
Шаг размеров: 50 мм
Толщина верхней и нижней поверхности: 1,8 мм и 1,4 мм
Толщина ребер жесткости: 1,1 мм
Характеристики пленки: шагреневое покрытие, толщина 200 мкр
Защитная пленка: влагостойкая пленка на каучуком клее, при снятии оставляет поверхности чистой.
Прочность: выдерживает давление до 200 кг/м2, пригоден для использования на порог
Упаковка: упакован в толстый цветной п/э рукав. Цвет рукава зависит от цвета поверхности изделия.
При продольном распиле профиль подоконника заканчивается ребром жесткости, не оставляет поверхность без упора.
Подоконник белый из серии STANDART.
Молочный цвет с шагренью был подобран под оттенки оконного профиля, что позволяет оконному пространству выглядеть монолитно.
Это сбалансированный вариант для первичной комплектации строительных объектов продуктом, повышенных прочностных характеристик.