





Основной склад: | В наличии |
| Склад Лежневская (Иваново): | В наличии |
| Склад Тула: | В наличии |
Подоконники ПВХ. Продукция завода ПДК.
Подоконник белый из серии STANDART.
Молочный цвет с шагренью был подобран под оттенки оконного профиля, что позволяет оконному пространству выглядеть монолитно.
Это сбалансированный вариант для первичной комплектации строительных объектов продуктом, повышенных прочностных характеристик.
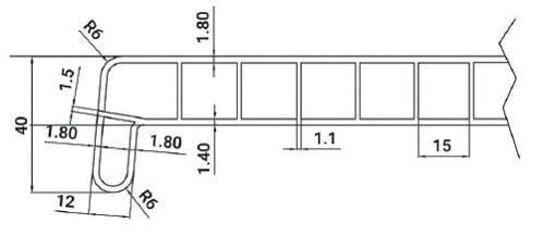
Основные характеристики:
Вес: 8 кг/м2
Ширина: от 100 до 800
Длина: Распил любой длины в пределах 6015 мм
Шаг размеров: 50 мм
Толщина верхней и нижней поверхности: 1,8 мм и 1,4 мм
Толщина ребер жесткости: 1,1 мм
Характеристики пленки: шагреневое покрытие, толщина 200 мкр
Защитная пленка: влагостойкая пленка на каучуком клее, при снятии оставляет поверхности чистой.
Прочность: выдерживает давление до 200 кг/м2, пригоден для использования на порог
Упаковка: упакован в толстый цветной п/э рукав. Цвет рукава зависит от цвета поверхности изделия.
При продольном распиле профиль подоконника заканчивается ребром жесткости, не оставляет поверхность без упора.
Подоконники ПВХ. Продукция завода ПДК.
Подоконник белый из серии STANDART.
Молочный цвет с шагренью был подобран под оттенки оконного профиля, что позволяет оконному пространству выглядеть монолитно.
Это сбалансированный вариант для первичной комплектации строительных объектов продуктом, повышенных прочностных характеристик.
Основные характеристики:
Вес: 8 кг/м2
Ширина: от 100 до 800
Длина: Распил любой длины в пределах 6015 мм
Шаг размеров: 50 мм
Толщина верхней и нижней поверхности: 1,8 мм и 1,4 мм
Толщина ребер жесткости: 1,1 мм
Характеристики пленки: шагреневое покрытие, толщина 200 мкр
Защитная пленка: влагостойкая пленка на каучуком клее, при снятии оставляет поверхности чистой.
Прочность: выдерживает давление до 200 кг/м2, пригоден для использования на порог
Упаковка: упакован в толстый цветной п/э рукав. Цвет рукава зависит от цвета поверхности изделия.
При продольном распиле профиль подоконника заканчивается ребром жесткости, не оставляет поверхность без упора.